
13098 Shoreline Way 68 Lake Country, BC V4V 0A8
Description
10379724
$3,219(2025)
Townhouse
Apex at the Lakes
2022
Mountain(s)
Central Okanagan
Listed By
ASSOCIATION OF INTERIOR REALTORS
Last checked Mar 26 2026 at 10:50 PM GMT+0000
- Full Bathrooms: 2
- Half Bathroom: 1
- Dishwasher
- Dryer
- Gas Range
- Microwave
- Refrigerator
- Washer
- Kitchen Island
- Laundry: In Unit
- High Ceilings
- Foundation: Concrete Perimeter
- Geothermal
- Forced Air
- Fees: $352
- Ceramic Tile
- Laminate
- Partially Carpeted
- Roof: Shingle
- Roof: Asphalt
- Utilities: Water Source: Public
- Sewer: Public Sewer
- Attached
- On Site
- Garage
- 3
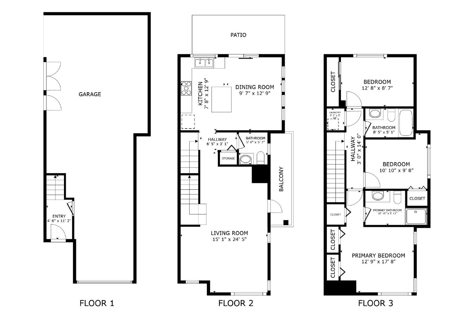
- 1,509 sqft
A tandem two-car garage with room for storage ensures your vehicles and recreational equipment are safely tucked away. This family-friendly community boasts a nearby playground and numerous hiking trails, perfect for family outings and recreation. Plus with Wood Lake and Okanagan Lake just minutes away, water enthusiasts will feel right at home. Oh, and don’t forget the close proximity to the award winning wineries! Don’t miss out on this amazing home and investment for your families future. *Photos were taken prior to tenants recently moving in while in transition between homes*